Architectural Construction Drawings, Bishop’s Stortford, UK
Architectural Construction Drawings Services | Construction Drawing Set | Working Drawings
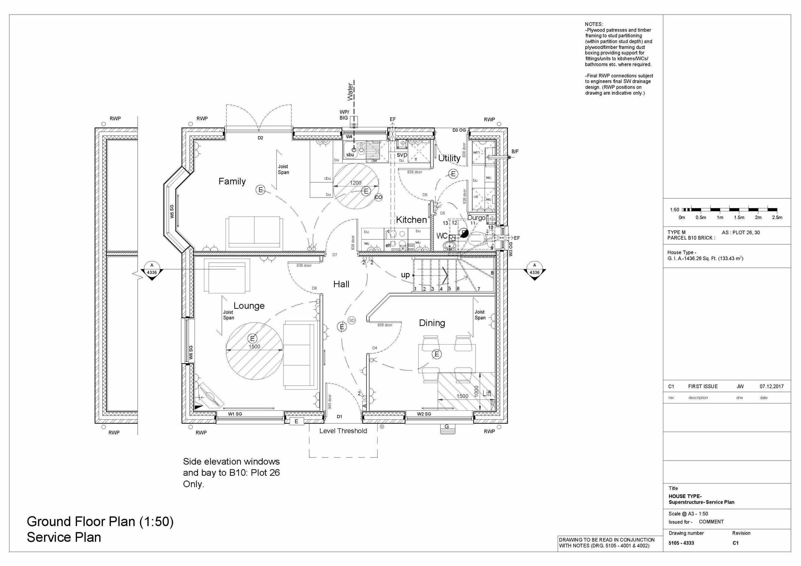
The objective was to develop a complete set of Construction Drawings as per NHBC standards, LTH standard and accredited details 2007.
This project consisted of producing architectural construction drawings for a 45789 sq. ft. area from the conceptual designs as the only input we received from the client were conceptual drawings consisting of basic plans and elevations. This project consists of 29 House-types, 4 Garage types, 3 Carports with variants in most types. We allocated three architects to completely work for around 100 working on this particular project.
Keeping the existing planning for furniture, the final output consisted of
- Two setting out plan,
- Two service plans,
- One roof plan,
- Four elevations (one of each side)
- And a section cut through the staircase and
Excellent quality of drawings in quick turnaround time led to a lot of construction drawing projects on our way from the same client.
- Construction Drawing Set in 2D format
- 2D Detailed Drawings (Substructure Plan, Setting Plan, Service Plan, Roof Plan, Sections & Elevations)
