With more than 18+ years of experience in CAD and BIM Services, we have completed 5000+ projects and built a lasting rapport with clients.
Tesla CAD provides high quality and precise MEP CAD Services to clients in UK and Europe. We have a team of HVAC engineers, drafters and MEP modellers who possess expertise in working on MEP projects. Our team extensively works on highly detailed projects in this domain. We utilize the latest systems and technologies to work on MEP projects.
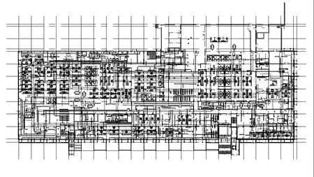
We provide detailed MEP CAD Drafting Services to MEP consultants, contractors, engineering firms, and construction companies. We are proficient in understanding the client’s project requirements and deliver a precise project output in a timely fashion. Our knowledge and understanding of construction standards and codes helps us deliver unmatched MEP Drafting Services in UK and Europe. We can deliver a high volume of drawings on an ongoing basis with quick turnaround time and consistent quality.
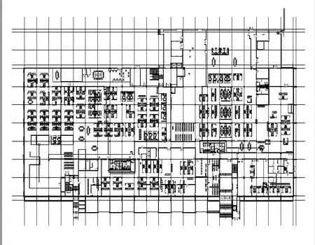
We provide complex and detailed Mechanical (HVAC) CAD Drafting Services to MEP consultants, contractors, engineering firms, and construction companies. Our team of CAD drafting is adapt with required drafting standards such as dimensioning standards, layering, etc. and follow them as per the clients’ requirements.
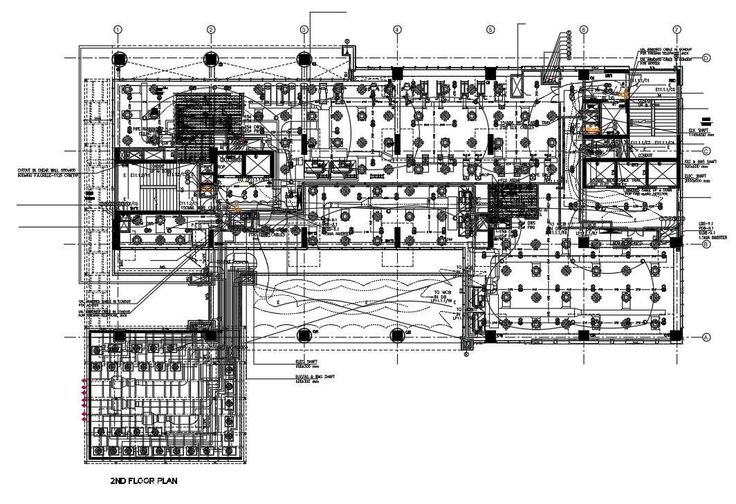
Tesla excels in delivering precise and detailed Electrical CAD Drafting Services. We have a rich experience of over a decade in providing Electrical Layout Drawings, Wiring Diagrams, fixtures, lighting and power drawings, etc. We follow the appropriate CAD Drafting standards as per the requirements.
We are proficient in providing accurate Plumbing CAD Drafting Services in London, UK, and Europe. We create piping layouts, plumbing fixtures, drainage drawings, piping layouts, etc. for commercial, residential, retail, and other buildings. We have worked with leading MEP Contractors and Consultants and have gained rich experience in working on complex Plumbing CAD Services.
We digitize scans, images, pdfs, hand-drawing sketches and convert them into AutoCAD Drawings that are accurate. These services are availed by clients who want to digitize their existing set of scans or hand drawings.
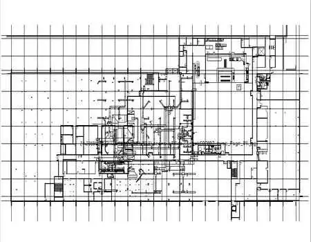
Providing MEP Shop Drawing Services is one of the core expertize of Tesla. Our team of Mechanical Engineers is experienced in working on complex and detailed shop drawing projects for residential buildings, commercial buildings, sports complexes, community centers, schools & colleges, etc.
|
MEP Shop Drawings
|
Ductwork Drafting
|
|
Piping Isometric Drawings
|
Plumbing Isometric Drawings
|
|
MEP Coordinated Drawings
|
Plumbing shop Drawings
|
|
HVAC CAD Drafting
|
Electrical Shop Drawings
|
|
Spool Drawings
|
Fabrication Drawings
|
|
Penetration Drawings
|
MEP Installation Drawings
|
With more than 18+ years of experience in CAD and BIM Services, we have completed 5000+ projects and built a lasting rapport with clients.
We undertake stringent quality measures to deliver flawless results that meet clients’ expectations.
Our devoted and dedicated services of over 18+ years make us your trusted and ideal BIM Services partner.
Our team of skilled professionals performs with a passion for excellence to give you excellent results.
Using the latest technologies, we create precise workflows for delivering stellar BIM, CAD and Visualization solutions.
We optimize resources to drive the best outcomes for our clients and take their business to the next level.


