Menu
Home
About us
Services +
Services
BIM Services
+
+
Architectural BIM
Structural BIM
MEP BIM
Clash Detection
BIM Coordination
Revit Family Creation
BIM For Infrastructure
Point Cloud to BIM
Architectural Construction Drawing
CAD Drafting
+
+
Architectural CAD Drafting
MEP CAD Drafting
Structural Steel Detailing
MEP Shop Drawing
3D Rendering
3D Floor Plan
Projects
Projects
Insights +
Insights
Blog
Case Studies
Infographics
Contact
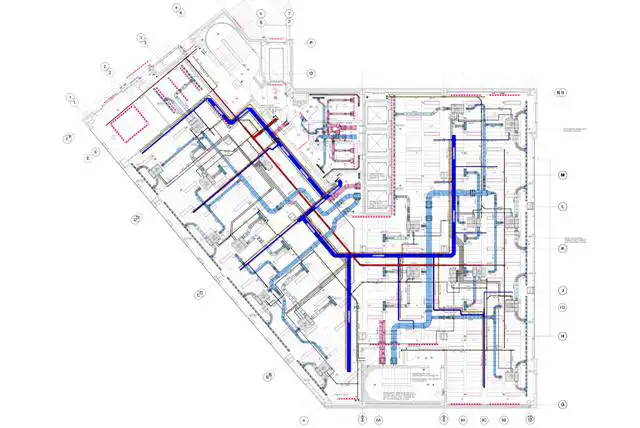
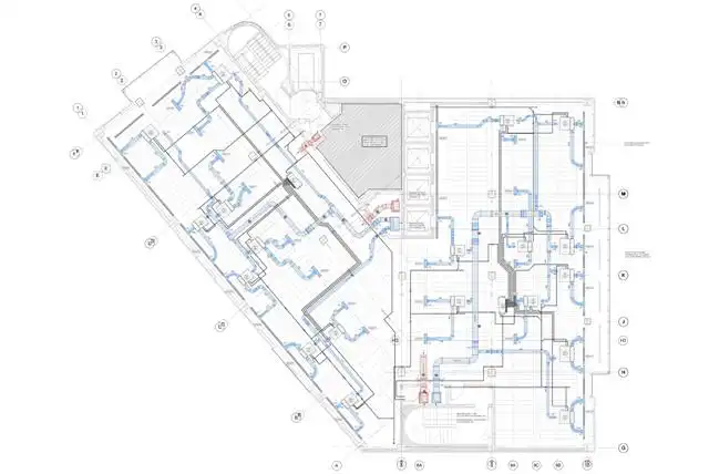
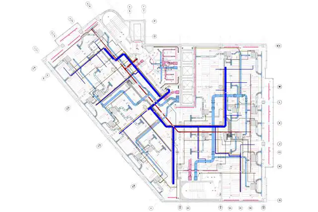
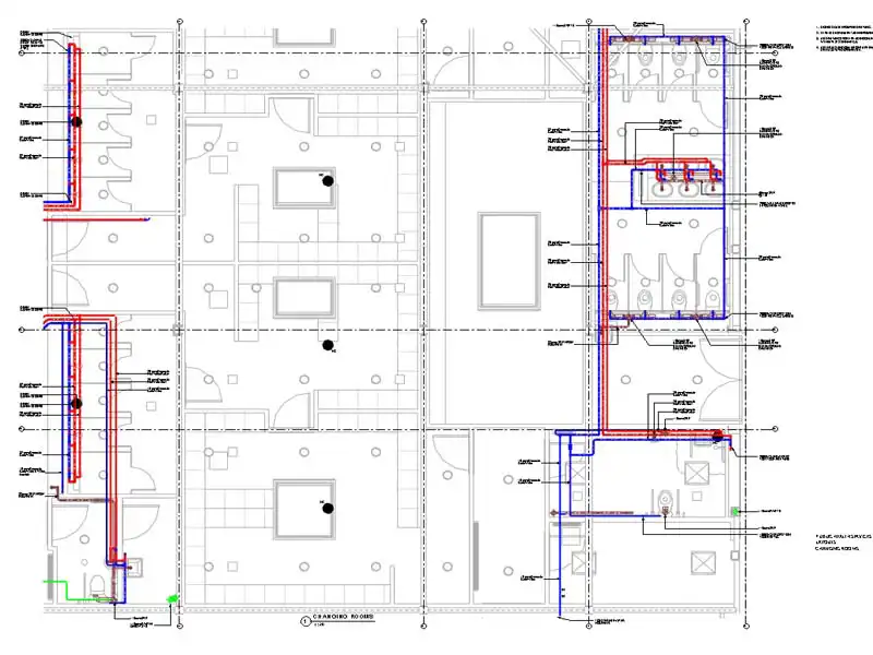
MEP Shop Drawing Porjects
Home
Projects
MEP Shop Drawing
×