Overview MEP Engineers faces many difficulties in coordination, fabrication, and installation of MEP Components and arrangement of components while looking schedule and cost constraints. It…
Overview Clash Detection is the core of a BIM Modelling Process that helps in effective recognition, examine and reporting interferences in a project model. It occurs…
Overview Construction Substantial Completion is when a contractor is not responsible for the projects, and the owner bears the liability. At this time, the contractor should…
Overview Geographic Information System is referred to as “GeoDesign” which applies to a planning process that enables decision-making in the context of local and regional…
Overview Advanced technologies including 3D laser scanning and photogrammetry captured by drones are transforming the way existing projects are designed and delivered. Scan-to-BIM is used…
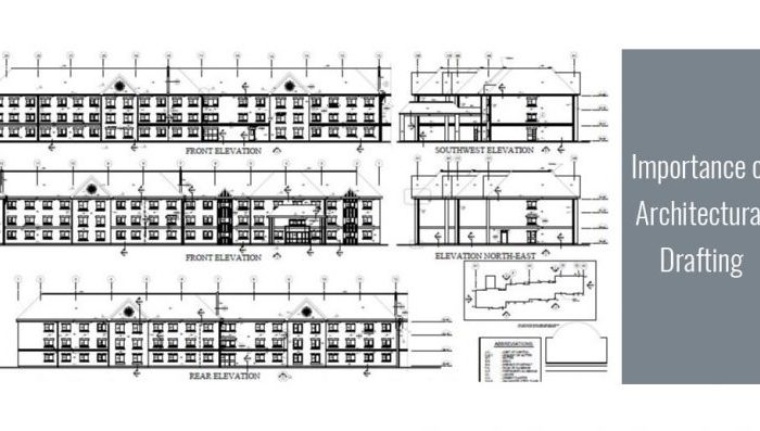
Overview In those earlier times, drafting meant drawing on larger sheets with a drafter. This took a lot of time and even caused inconvenience for…
Building Information Modelling (BIM) helps AEC professionals to work on planning, design, and construction of building across the project lifecycle. The output of this process is…
The drawings for any new construction project is the central part of the complete development. The quality of the drawing sets influence the later stages…
Architectural 3D Modeling is a virtual presentation of the building design. The design information such as layout, colour scheme, site, landscape, space planning can be depicted…
As-built drawings are defined as the set of drawings that are developed based on the existing site conditions. These drawings are created in order to…
LOD stands for Level of Detailing in BIM. This specification determines the nature of the BIM Model based on the client requirement. It is not…
Design options help in providing numerous alternatives of a single design for a particular building or house type. These alternatives can suggest better options of a…












